Timber House Apartments

This project, located at Block 3 on the Vancouver Waterfront, will consist of an approximately 210,000 square foot, eight-story residential building. The first story will include parking, a residential entry, and services, with seven stories of rental apartments and amenities above. The project will include an occupied roof amenity deck at level 4, located within a courtyard directed at the Columbia River and Portland, Oregon beyond. There will also be an occupied roof deck on the upper level. The building will contain approximately 207 residential apartments with an average size of 675 square feet. Level one will house 207 parking spaces organized using parking stacker systems. The building is part of a larger plan aimed at bringing new large-scale development and activity to the Vancouver riverfront.

Typical design investigation includes extensive façade studies, reviewed internally and also shared with our client.  

Preliminary Typical Studio Apartment Plan

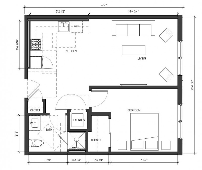
Preliminary Typical One Bedroom Plan

Specs

Typology MUlti-Family, Residential

Size 210,000 s.f.

Status Design, 2020

Team

Architect Level Architecture Incorporated

Owner Cedar Street Companies