312 East Gay Street

This 38-unit apartment building is located at Gay and 6th Street in downtown Columbus, Ohio, and is part of the Neighborhood Launch community. Large corner balconies act as outdoor living rooms and focus views up and down Gay Street. Perforated metal panels act as screen elements, providing a level of privacy while still allowing views, breezes, and sunlight into those spaces. These panels also add a touch of ephemeral mystery to the Edwards Companies and Eclipse Real Estate portfolio. The project consists of two-bedroom units averaging 1,350 square feet, with a parking space for each unit.

Large balconies create separations between the two cladding types to carve away and break up the mass of the building. All of this floats above a charcoal brick podium.

The front facade of the building stretches along Gay Street, an active street minutes from the downtown business district. Our project continues the stretch of housing on the street, adjacent to two blocks of townhouses constructed in the 1990's. 

The mid-block entrance to the building uses the stair and wheelchair ramp as sculptural elements, as well as a means of creating a bit of separation from the sidewalk and pedestrian traffic. The glass-covered south lobby wall clearly signals entry.

Lobby

Early sketch of material combination

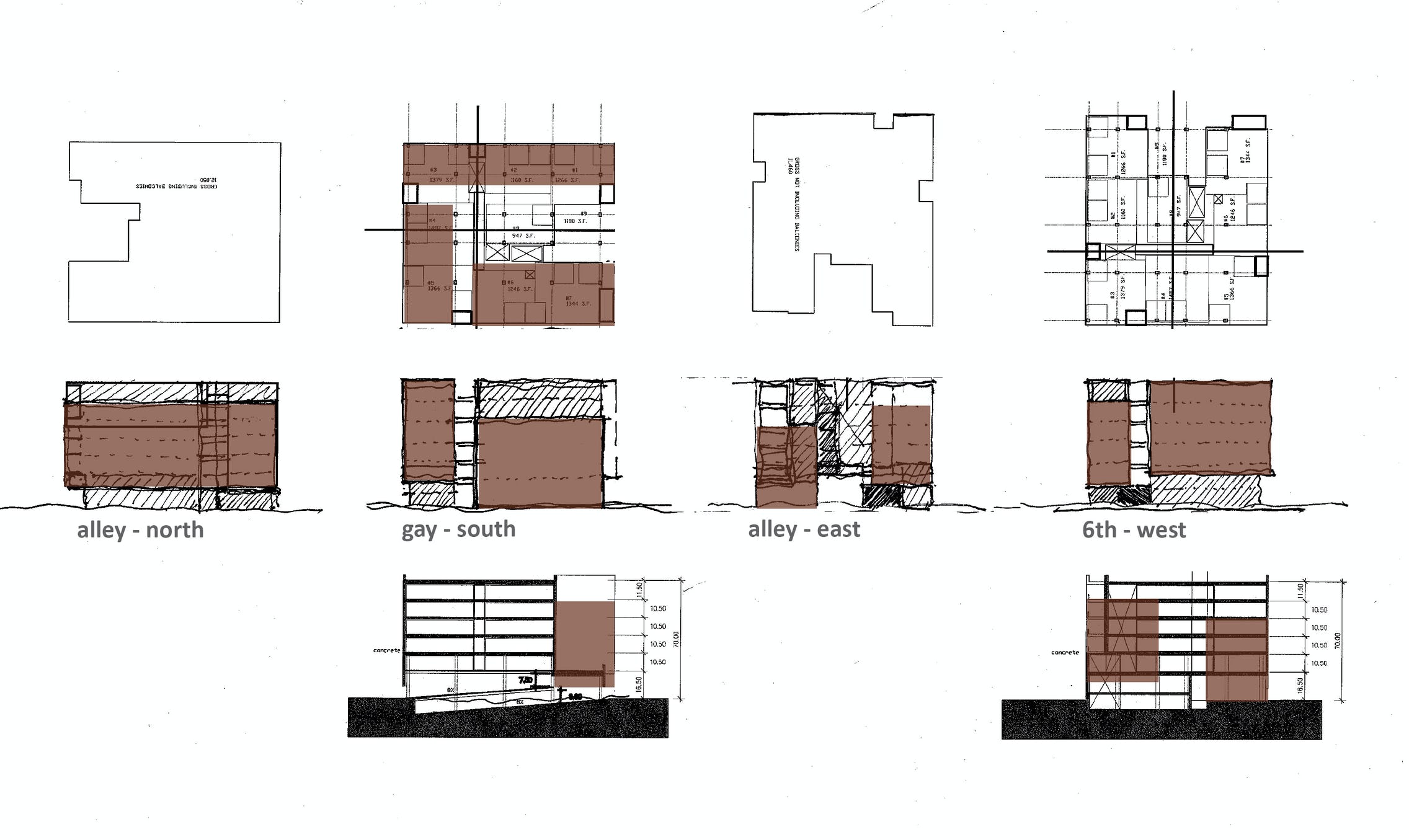
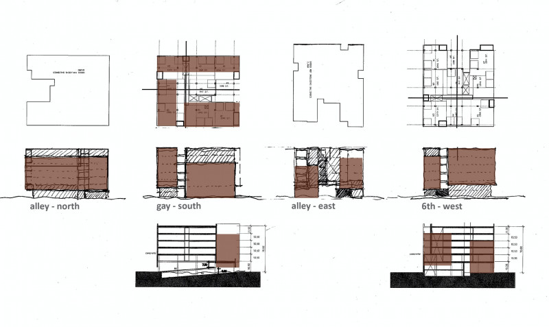
The building is clad in two types of metal panels: a simple flat panel and a formed panel system, which creates a pattern of thin lines and shadows. Panel joints and opening locations have been carefully studied.

Exterior studies

Massing concept for the building indicating potential material differences and reveals created by balconies to break up the massing of the full-block structure

Interior unit views

Specs

Typology Multi-Family Residential

Size 38 Units, 72,500 SF

Location 312 East Gay Street, Columbus, Ohio 43215

Status Design

Year 2018

Team

Architect Level Architecture Incorporated

Client The Edwards Companies

Structural Engineer Schaefer Incorporated

Mechanical Engineer McMullen Engineering Company, Inc.

Civil Engineer Advanced Civil Design

Landscape Design Hidden Creek Landscaping Inc.

Visualization Halo Architectural Visualization Company