419 West Superior

This project was a proposal for an infill site in the River North neighborhood just north of the Chicago River and the city's infamous Loop. The six-story building consists of 32 one-bedroom and efficiency units. It is equipped with ground floor parking accessed from the alley, as well as building services and a lobby off of Superior Street.

The design team looked at multiple exterior variations for the principal façade, employing a regular window pattern that helped to emphasize a vertical structural grid.

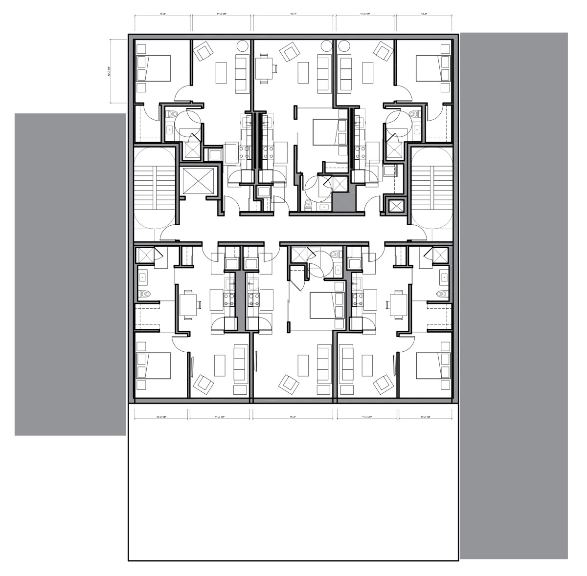
The mid-block site suggested an approach that concentrated on the matrix of micro units that populate the front and back of the building — the two faces exposed to available natural light.

On a typical project we generate a number of elevation studies that consider window placement, composition of the façade, material options, proportion, and order. Most studies are considered in-house before sharing the best, most appropriate solutions with our client.

Typical residential floor. All natural light and ventilation for each unit is provided by windows on one wall, making the layout of units challenging.

Specs

Typology Multi-Family Residential

Size 28,220 SF

Location 419 West Superior, Chicago, IL

Status Feasibility Study

Date 2017

Team

Architect Level Incorporated

Developer Cedar St Companies