Evanston Gateway

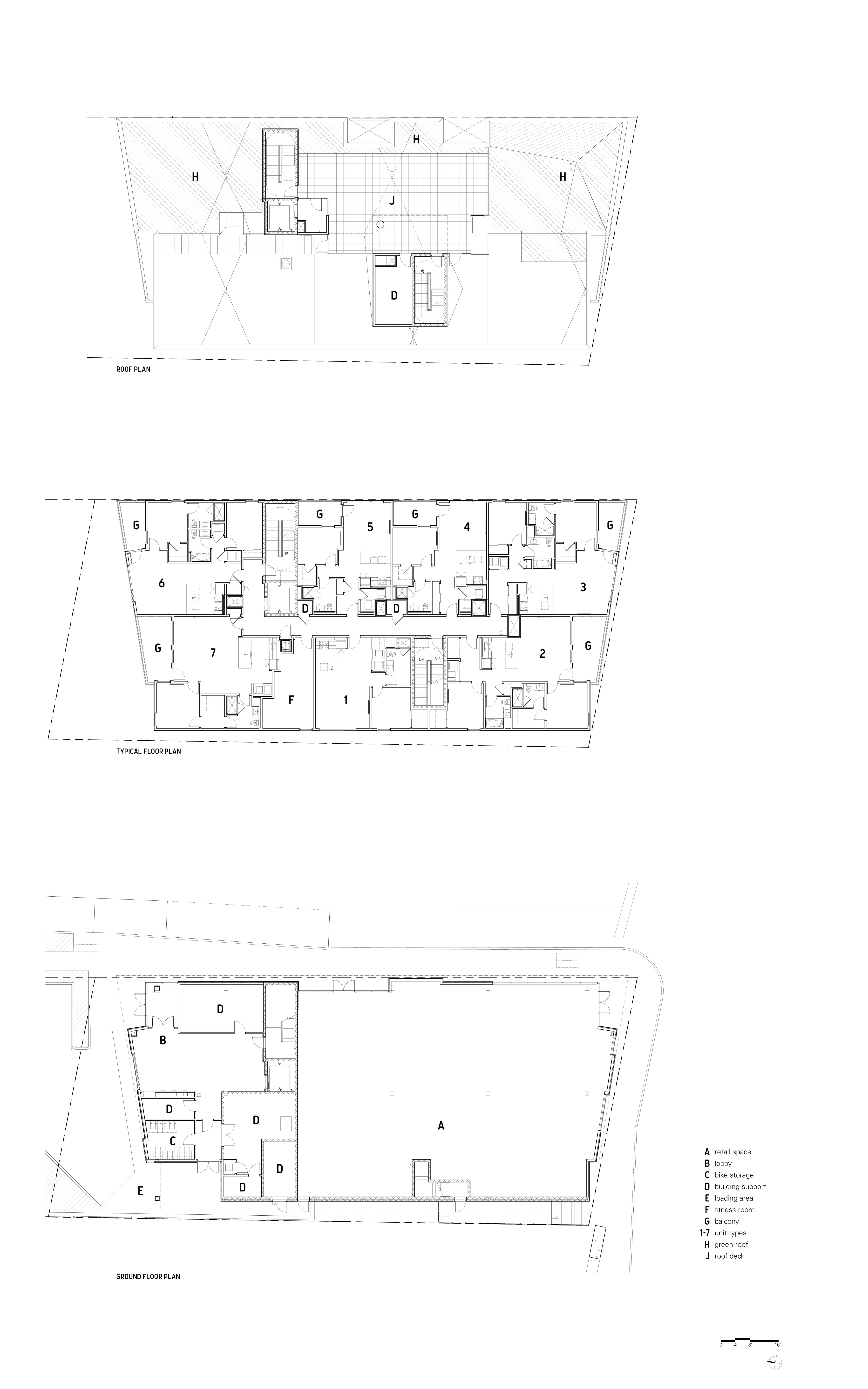
Located just steps away from the bustling Howard transportation hub, Evanston Gateway is aptly named. Located along an active retail street forming the border between Chicago and Evanston, this mixed-use development replaces a derelict brownfield site and parking lot with 28 residential units of market-rate and affordable rental housing. Due to the manner in which this site is so completely physically isolated from neighboring structures due to streets, trains, and landscape features, one could argue there is no “architectural context” to this site. This exposure created a situation where all 4 elevations of the building can be clearly seen from a distance.

Seizing on the gateway theme we decided to activate the three prominent elevations with a series of recessed and quasi-projecting balconies. These balconies are partially clad in a perforated metal, to hint at a bit of privacy and also convey a sense of transparency. The balconies are also lined with a warm, contrasting wood-like finish to further illustrate the “carve-out” aspect.

The building achieves LEED Silver certification, utilizing such strategies as extensive green roofs, improved building envelope, natural daylighting in all of the units, low flow water fixtures, and Energy Star appliances.

The project is located at the end of Clark Street at the southern border of Evanston, replacing a parking lot and a derelict automotive repair shop. 

The roof of the building is used to divert rainwater, while also providing a roof deck for tenants. Additionally, no invasive plantings were included on site.  

The site is challenging: long, narrow, and bordered by the elevated Metra embankment and the CTA rail yard. Nevertheless, resurgent commercial activity on Howard Street has created an opportunity for a vital retail corner at the intersection where Evanston Gateway has opened its doors.

As a Transit Oriented Design development, Evanston Gateway overlooks the bustling Howard transportation hub.

Aluminum Composite Material panels in several shades of green give the façade a degree of variation, similar to the treetops visible to the west from the upper floors of the building.

Elevation Study

Glass and metal window frames

Vertical siding

Balcony Screens

Lighter band

Screens and bands

Complete facade study

Carved out balconies

Specs

Typology Multi-Family Residential

Location 100 Chicago Ave, Evanston, IL 60602

Size 42,600 SF

Status Completed 2023

Team

Architect Level Incorporated

Developer Harrington Brown, LLC / LG Development

General Contractor LG Construction

Structural Engineer Johnson Wilbur Adams, Inc

MEP Engineer Cosentini Associates

Civil Engineer Gewalt Hamilton Associates

Photographer Scott Shigley