4540 North Ravenswood

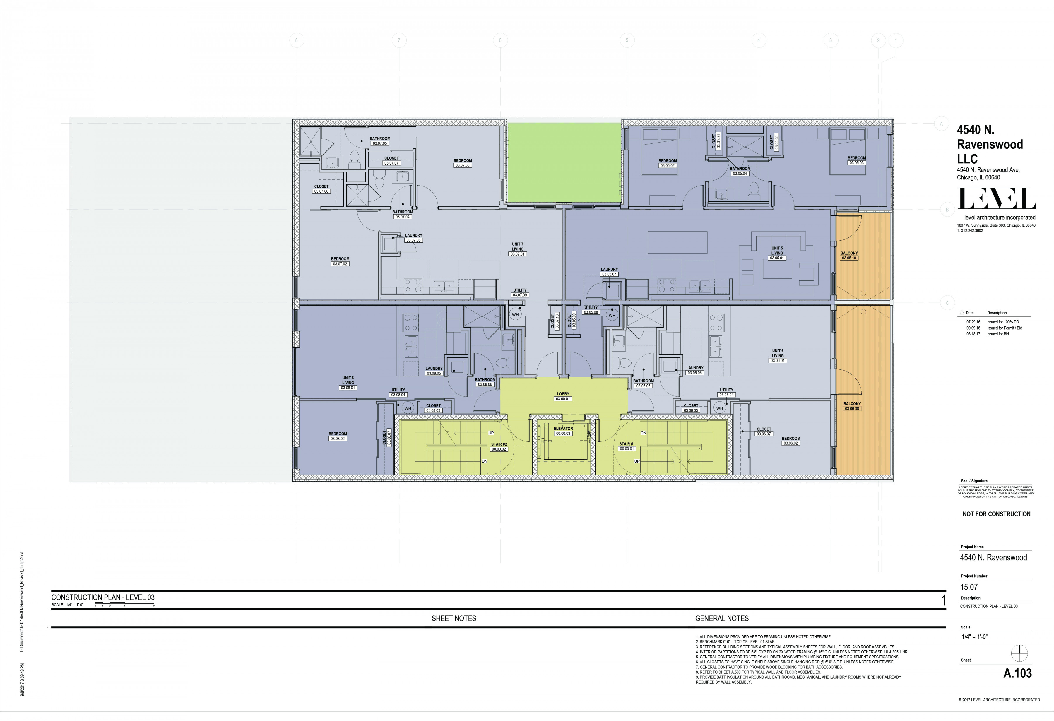
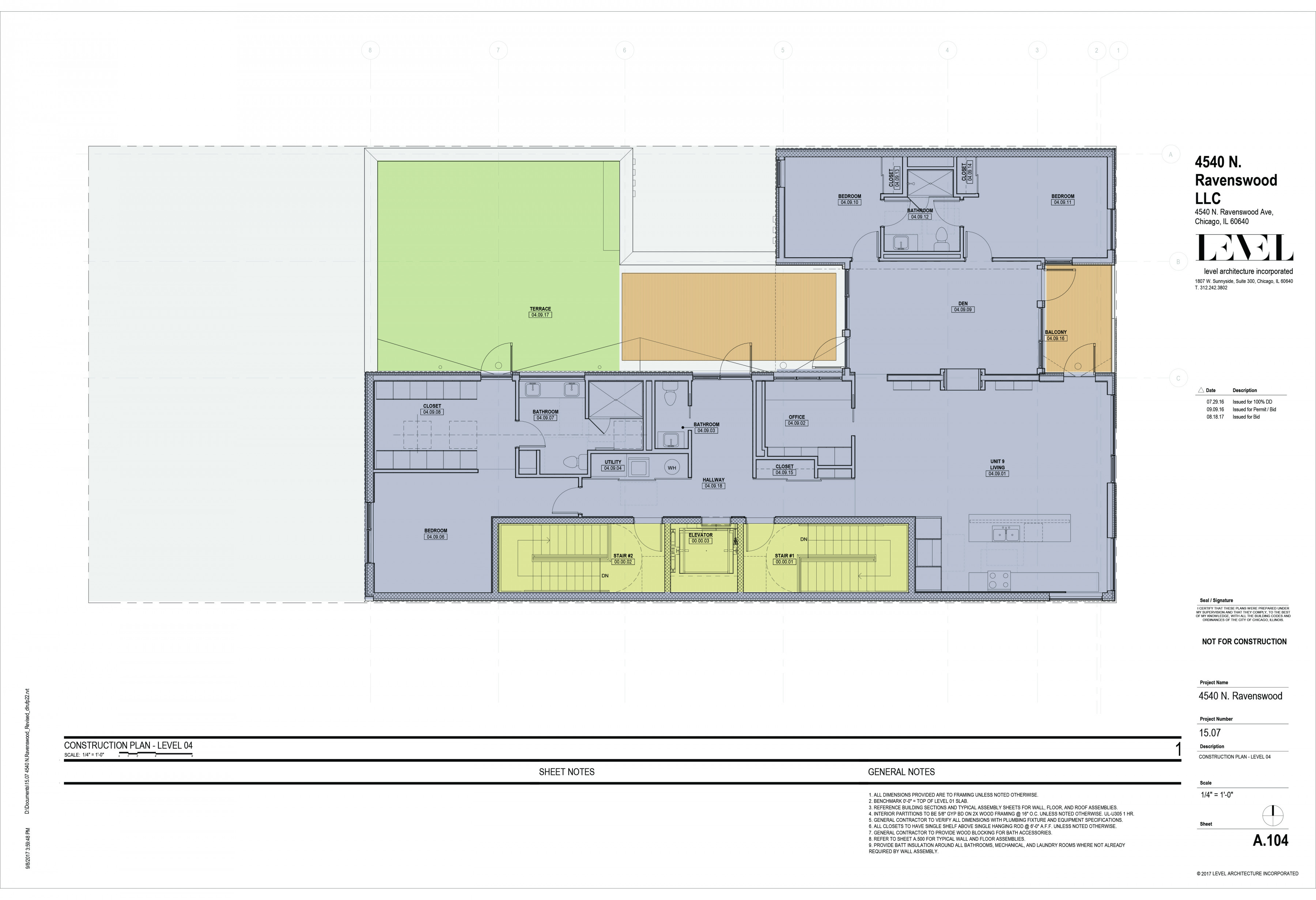
This mixed-use project, situated between the CTA Brown Line and the Metra Union Pacific North Line, takes inspiration from the area's history as an industrial corridor, vibrant business location, and commercial hub. The building incorporates expansive windows, corrugated aluminum siding, roof gardens, and oversized balconies. By embracing the building's exposure to train commuters, a new paradigm is proposed by creating nine loft-style apartments above a ground floor commercial space.

The one- and two-bedroom units are furnished with wood floors, stainless steel appliances, contemporary kitchen cabinets, and large-format porcelain tile bathrooms, as well as high-efficiency HVAC systems.

Ravenswook 1

A north-facing internal courtyard creates further opportunities for light and views, as well as the introduction of a natural element at grade level.

A scrim of perforated metal creates a veil of privacy between the apartments and train passengers, yet allows the passing of daylight through the translucent material, ensuring that each unit enjoys abundant natural light.

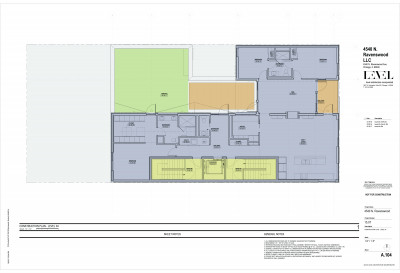
Site plan

North elevation

Levels (click to view large)

Ground

Level 2

Level 4

Specs

Typology Multi-Family Residential

Size 13,300 SF

Location 4540 N Ravenswood Ave, Chicago, IL 60640

Status Complete

Date 2019

Team

Architect Level Incorporated

Developer 4540 N. Ravenswood, LLC

Structural Engineer Sound Structures, Inc.

MEP Engineer Building Engineering Systems, LLC

Press

Curbed: Modern looking nine-unit TOD slated for Ravenswood parking lot

Click here to look at some design process in our news section.