The June

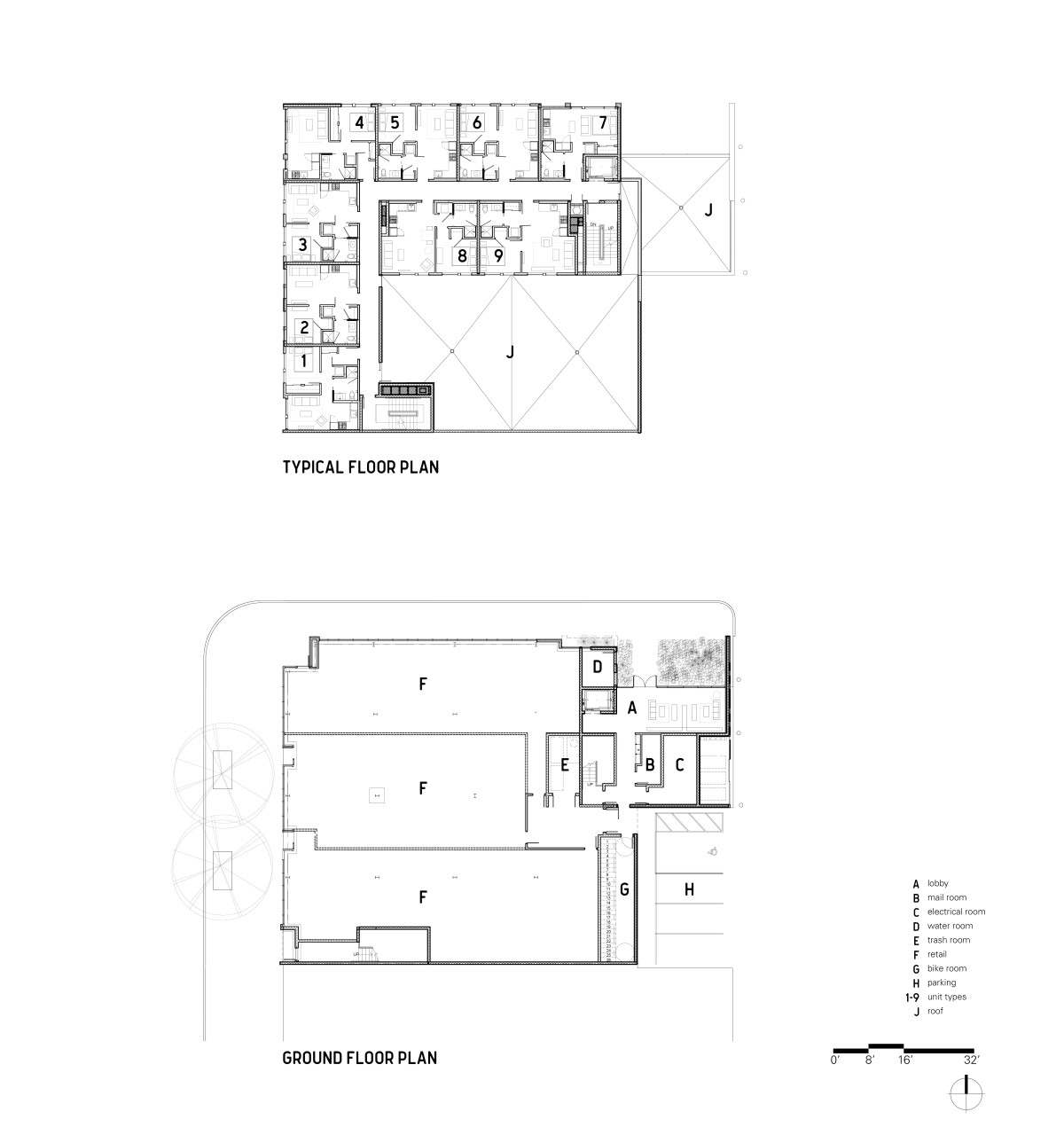
Located in Chicago’s Uptown neighborhood on the bustling corner of Foster and Broadway, The June is a mixed-use development spanning 24,500 square feet. The lower level offers three commercial rental spaces, and the upper levels contain 27 residential units in studio and one-bedroom configurations. The building was a close collaboration with Flats, a development group known for its stylish, high-end residential apartments and attractive amenity packages.

The thoughtful design caters to the building’s dual commercial and residential uses — upper floors float above a base of mostly glass, creating a transparent ground floor that increases retail visibility.

The new development also acts as a neighborhood anchor, replacing three derelict structures with a strong physical corner that respects the massings of the adjacent buildings.

Many of the projects with which we collaborate with Cedar Street Development are in very close proximity to public transportation, in this case less than one block from the Red Line.  This allows people who don't own cars the opportunity to access public transportation (and drive-sharing) in order to enjoy all of the amenities urban living has to offer, without having the expense and hassle of owning a car. 

The apartment lobby is removed from the corner for a comfortable separation between retail and residential functions.

Building within a dense urban area often means considering what it means to be a good neighbor. We shaped our design to meet our clients’ needs while still respecting the surrounding urban tapestry. Our solution was to create a massing scaled to the existing neighborhood buildings and streets.

Specs

Typology Multi-Family Residential

Size 24,500 sf

Location 5155 N. Broadway, Chicago, IL 60640

Status Completed

Date September 2020

Website The June

Team

Architect Level Incorporated

Developer Cedar St Companies | The Flats

Contractor Method Construction

Structural Engineer Wallace Design Collective

MEP Engineer The Engineering Studio

Civil Engineer & Landscape Erikkson Engineering

Photographer Scott Shigley

Video/Drone Maxamillion Studio