Latin School Play Garden

The Latin Lower School playground occupies the grounds of the former Lurie Mansion in the Gold Coast neighborhood of Chicago. While the land was originally purchased for school programming and renovation of the building for additional classroom space, ADA compliance and budget restrictions instead prompted the re-imagination of the building as administrative offices, using the grounds as a new play space for the Lower School children aged four to six. This creatively addressed the school’s overcrowding issues while maximizing budget and outcome. It also provided a much-needed addition to the school’s singular rooftop playground, allowing the school to simultaneously stage recess and outdoor playtime for all grades.

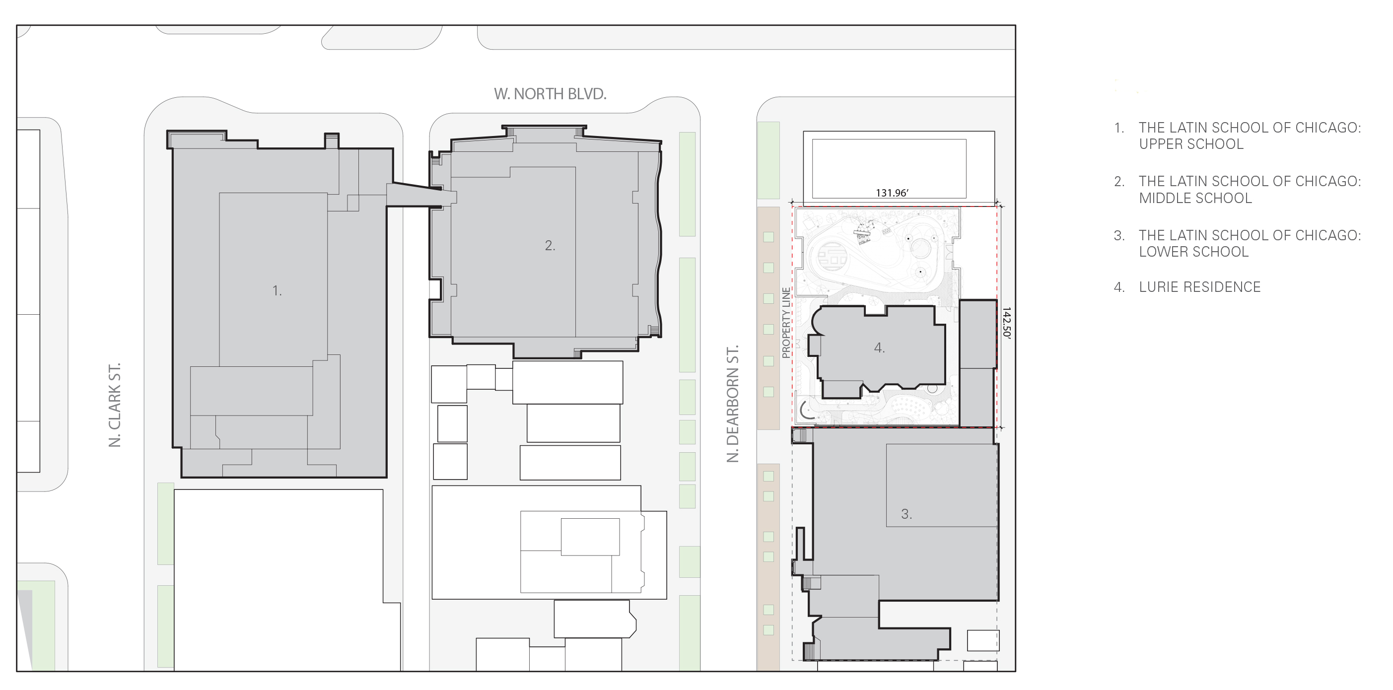
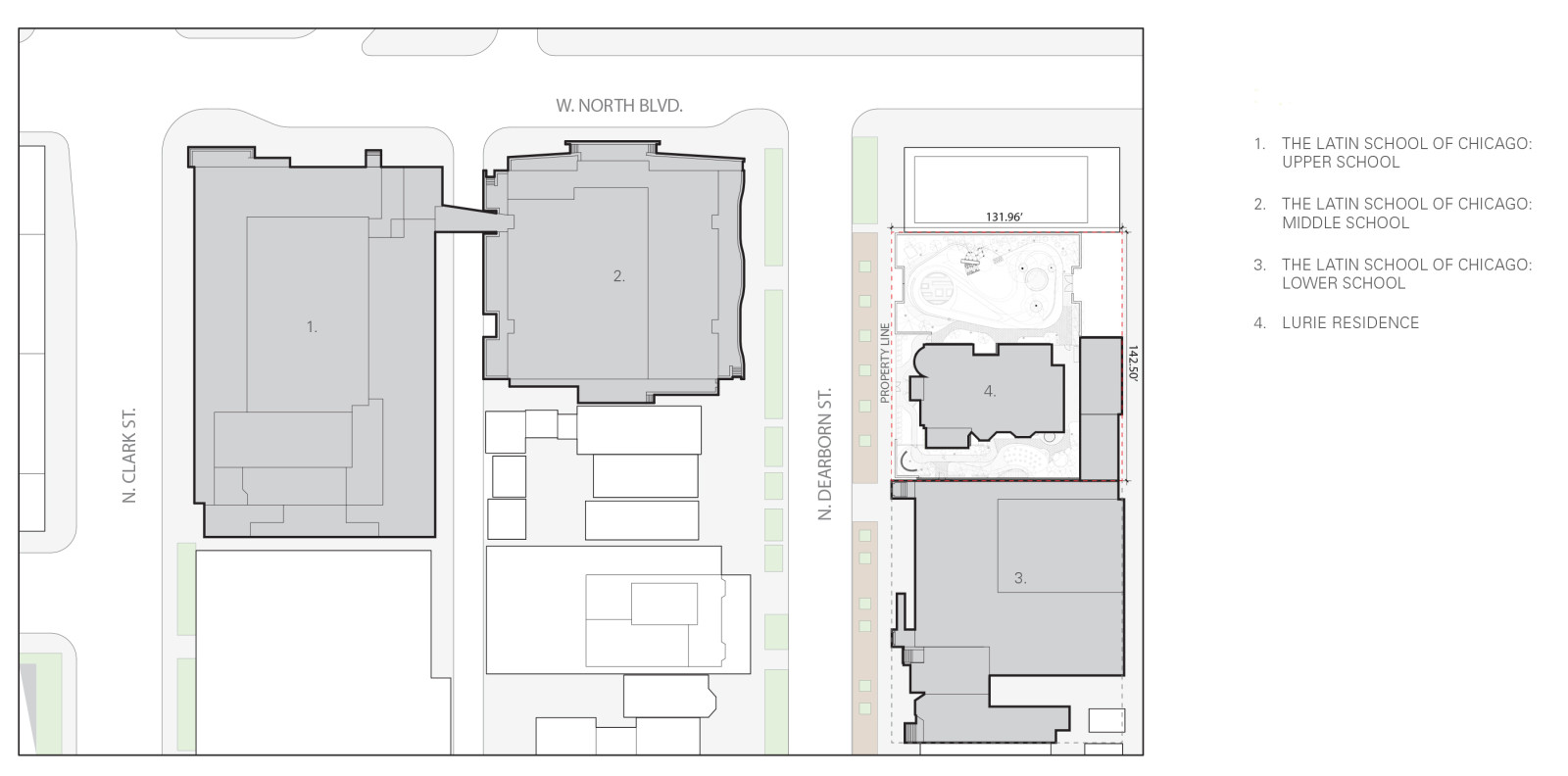
Site plan showing the urban location of the school at the intersection of North Avenue and Clark Street, with the addition of the Lurie Residence and its associated open space.

Latin School Playground – Play

A stage for theatrical performances and an orchestra pit round out some of the opportunities for play and engagement, with FSC Certified Ipe decking materials used for the benches and stage.

Multiple textures and materials were employed, including plants, rubber, rocks, crushed stone, mulch, and wood. 

materials

We used some recycled materials for greater sustainability. Plastic milk containers and sawdust became landscape timbers, and recycled automobile tires created a permeable rubber surface to mitigate stormwater runoff.

The playground was designed according to the principles of Reggio Emilia, an approach towards early childhood education that encourages children to construct their own learning through play and exchange with each other, as well as with the teacher. In this context, the environment is the teacher, inspiring and encouraging children to delve deeper and deeper into their interests.

Our design created two distinct zones: one active and one more contemplative. Both include a colorful ground plane that can be interpreted simultaneously as an abstract painting, transportation system, and cartographic game board.

Specs

Typology Landscape, Garden, Play

Size 18,744 s.f.

Status Complete, 2019

Team

Architect Level Architecture Incorporated

Design Consultant Sakayan, Inc.

Owner The Latin School of Chicago

General Contractor Asimow Landscaping

Landscape Design Level Architecture Incorporated

Specialty Carpentry Benchdog Construction

Photography Kendall McCaugherty, Steve Hall + Nick Merrick

Press

World Landscape Architecture, March 2022

Recognition

Award Association of Licensed Architects, Gold Medal Award, 2019