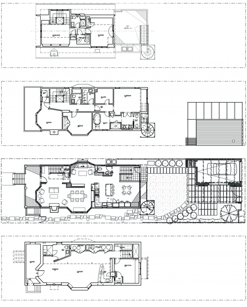
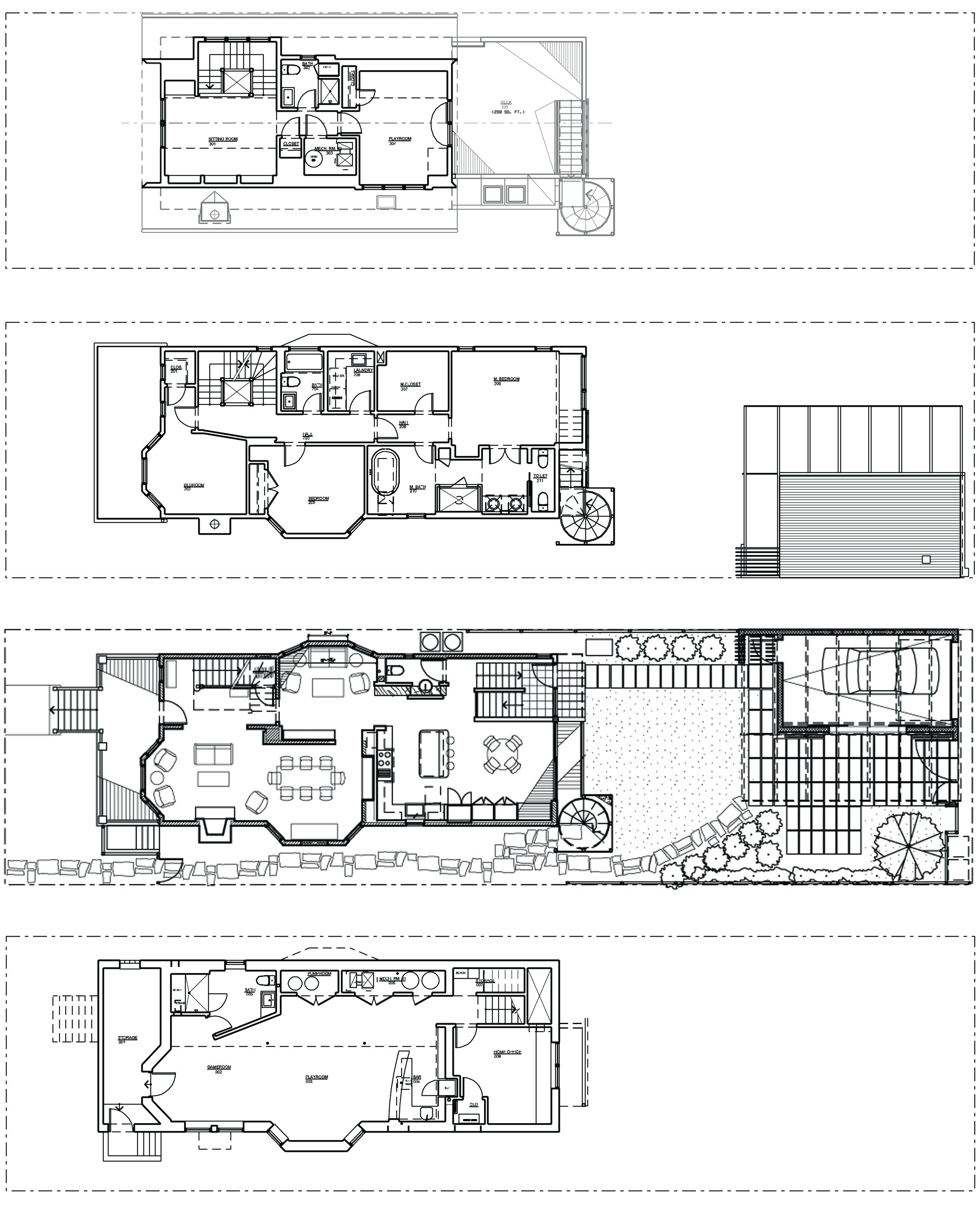
Bradley Place Residence

A complete renovation of a single-family home for a family with young children, this project was designed with two distinct façades for both the public street and the private rear yard. Cedar siding at the garage, fences, and the back half of the house tie the composition together materially.

While the front of the house remained consistent with the predominantly frame homes on the street, including the requisite front porch, the rear of the house assumes a much different, more contemporary environment, with large windows and screens for the private and outdoor functions of the site.

In lieu of a two-car garage that would occupy most of the back yard, the owners elected to build a single car garage, which is enclosed, and a covered carport. When the second parking space is not needed, or the car is parked on the street, the open space can be used for play, outdoor dining, and entertaining. 

Cedar horizontal lattice surrounds an exterior spiral staircase that leads to the third floor deck. This allowed us to slightly camouflage the stair, needed for egress, while still allowing translucency and lightness in the back yard.

Front and back

Specs

Typology Single-Family Residential

Size 4,500 sf

Location 2010 W Bradley Place, Chicago, Illinois

Status Completed

Date 2003

Team

Architect Wilkinson Blender Architecture

Client Payton and Jon Callahan

Contractor Rock and Wall Construction

Photography Matthew Gilson, Barbara Karant

Press

Chicago Magazine, April 2005