WeWork Bridgeview Bank

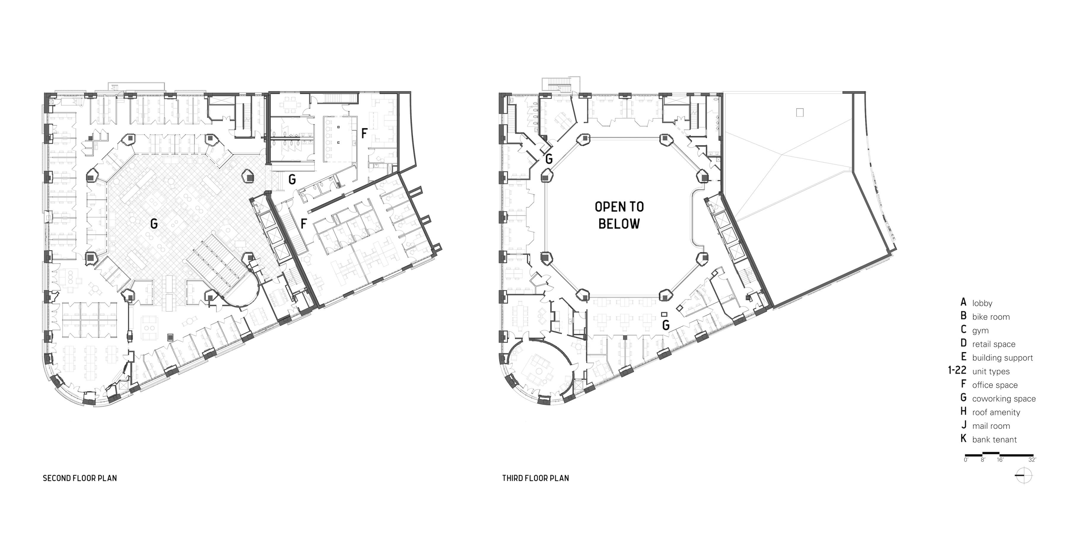
The WeWork Bridgeview Bank coworking space in the restored historic banking hall at 4753 N Broadway is a visually stunning, and convenient, neighborhood amenity for tenants of The Teller House and other Uptown residents. This important architectural and cultural icon was designed by Marshall & Fox and constructed in 1924 for the Sheridan Trust and Savings Bank. The building's ownership has changed several times throughout its history, from New York Life in 1931, to Bridgeview Bank in 2003, and finally to Cedar Street Properties in 2019. Today, the historic character of the building’s exterior, two-story banking hall, elevator lobbies, and corridors have been maintained and adapted per National Park Service Secretary of the Interior's Standards for Rehabilitation.

Built in 1925 during the golden age of bank architecture, this new WeWork location is an intersection of modern functionality and classical design.

The 14-story Bridgeview Bank has been an architectural icon in the Uptown neighborhood since its construction almost 100 years ago. In order to protect its history, the project was reviewed by the National Park Service, and had to conform to a number of federal standards. For example, the bank’s key areas, such as the banking hall where the WeWork location is situated, were required to retain their original architectural character — even as we adapted the building for contemporary living and working practices. 

The enclosed coworking offices are intentionally differentiated as modern insertions within the historic fabric of the two-story landmarked banking hall.

The space’s recommissioned bank tellers, new enclosed glass and metal offices, and an expansive central lounge offer a beautiful environment for workers within this iconic Chicago landmark.

SPECS

TYPOLOGY Coworking, Office

SIZE 21,400 SF

LOCATION 4753 N Broadway St, Chicago, IL 60640

STATUS Completed 2023

WEBSITE WeWork

TEAM

ARCHITECT Level Architecture Incorporated

OWNER/CLIENT Cedar Street Companies

CONTRACTOR Method Construction

STRUCTURAL ENGINEER Wallace Design Collective

CIVIL ENGINEER Erikkson Engineering

MEP ENGINEER Diligent Design Group

PHOTOGRAPHER Scott Shigley