Gore Residence

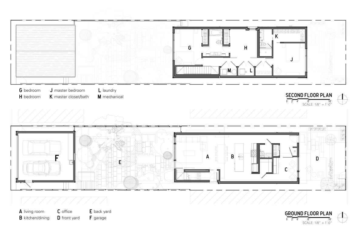
Level was asked by a young couple to design a new house in McKinley Park, an up-and-coming neighborhood on Chicago's southwest side. The block consists of predominantly frame 1 1/2 story single family homes. Like other Chicago neighborhoods, at some point in its history the streets and sidewalks were raised, presumably for flooding reasons. This condition causes the houses to appear below grade, with "bridges" and stairs leading to what would be the second floor of the home. The basement essentially sits on grade, five feet below the sidewalk. We embraced this condition and put the entry to the home at grade, eliminated the basement, and made the house only as large as it needed to be. This preserved major outdoor space for backyard entertaining, and allowed us to save money on construction. The result is an extremely efficient yet accommodating single family home. It is modern in appearance, yet fits into the neighborhood fabric.

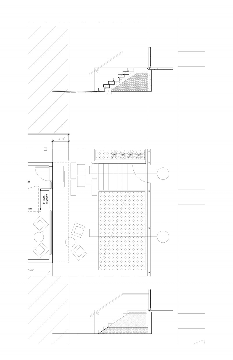
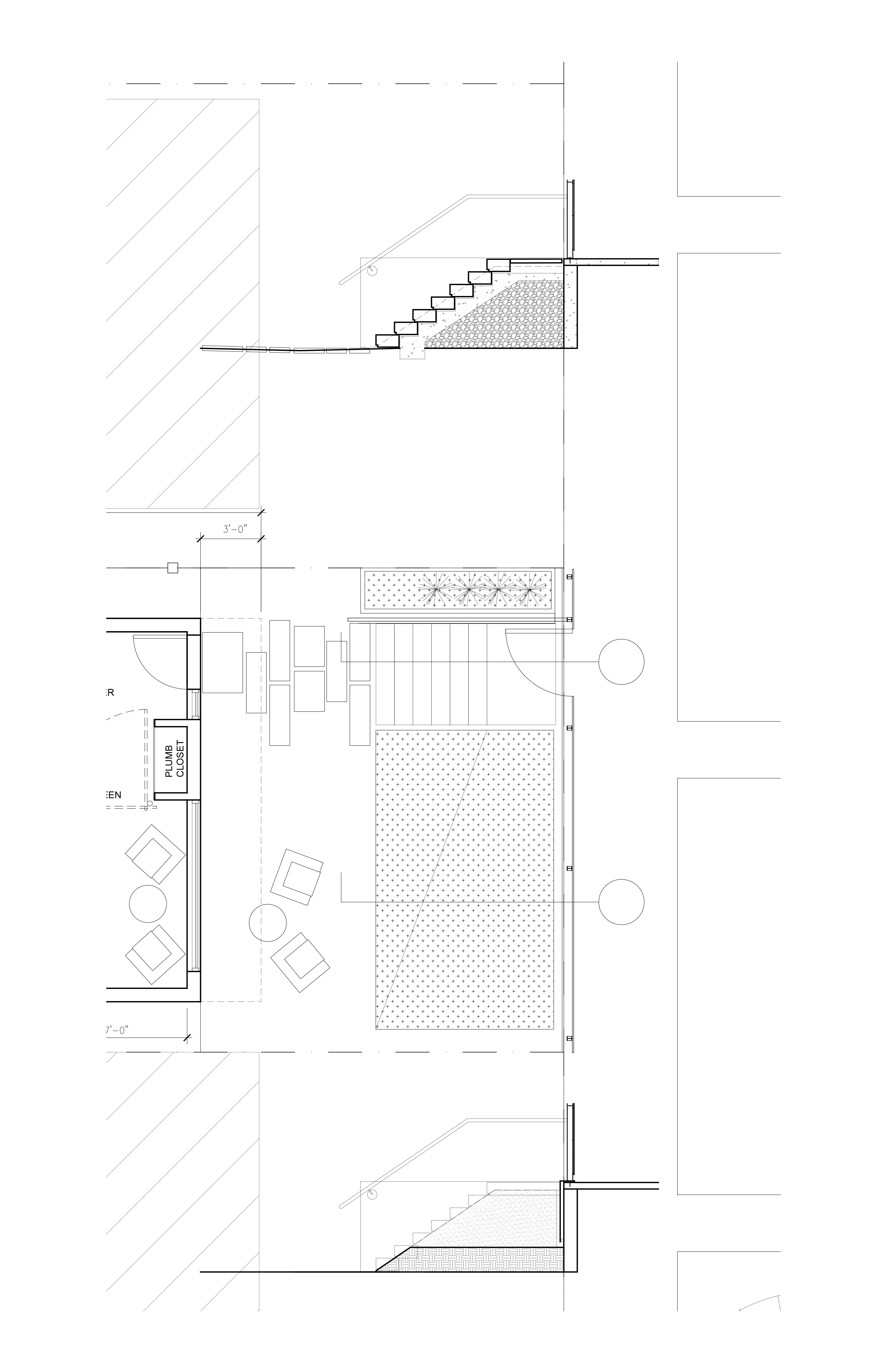
In contrast to the neighboring homes, the entrance to the home is at grade, eliminating a basement, and allows for a gracious sunken entry and garden, as well as a large window providing ample light into the owners' home office.  

This wood-clad box anchors the open floor plan of the first floor and houses an office, coat closet, pantry, powder room, and the working wall of the kitchen.

The upstairs corridor was detailed so that the double doors into three large closets seamlessly integrate into the wall.

The following are clips from the Design Development Presentation to the client, assembled by project architect Amelia Tabeling. In addition to digital modeling and reference imagery, Level also provided cut sheets of actual products to convey design intent. 

In addition to architecture and interior design services, Level provided landscape design services for the project. A formal, geometric landscape mass incorporating a stair and several corten steel planters and walls creates a simple landscape form in the front entry garden. The private back yard, in contrast, invites the native prairie landscape that once covered the area into the residence, carving out an island for dining and entertaining within a sea of wildflowers, birds, and bees.  

Specs

Typology Residential, Single Family

Size 1,979 s.f.

Status Complete, 2021

Team

Architect Level Architecture Incorporated

Client John and Katie Gore

Contractor Cuzco Construction

Structural Engineer Enspect Engineering

Landscape Design Level Architecture Incorporated

Landscape Contractor Asimow Landscaping

Photography Scott Shigley