Beacon Academy Arts Annex

When Beacon Academy was looking to expand their school's arts program, they embarked on a search to find the perfect location: one that could accommodate their evolving visual and performing arts offerings. After locating the perfect storefront that was just a few minutes' walk from the main campus, Level and Sakayan were tasked with bringing the space to life.

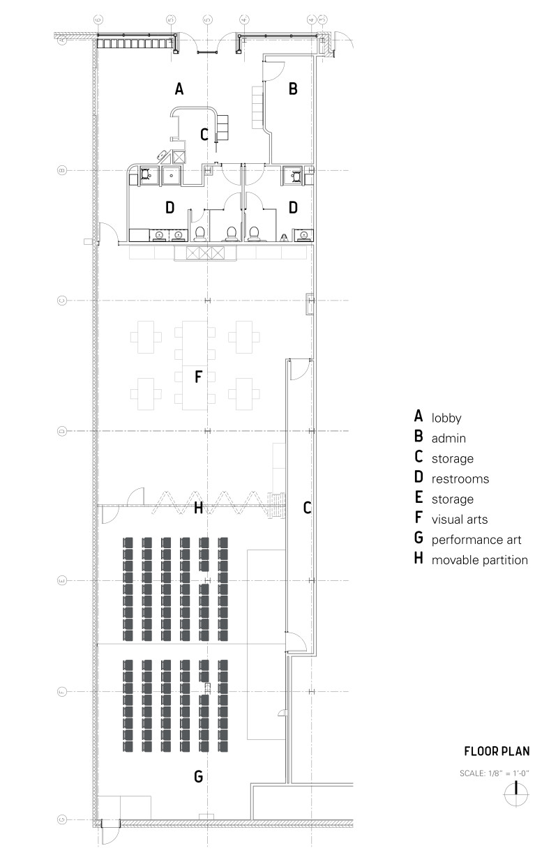
Created with limited intervention, the project includes a front lobby for students to gather, a visual arts classroom, a performance arts classroom, and storage space. One of the main features of the building is its flexibility. The design includes a movable wall between the two main classrooms, which can be opened to create a larger space for performances and events. This allows the school to accommodate considerable audiences when necessary, and also provides a gathering space for the community on special occasions.

Beacon Academy seeks to provide a unique and innovative arts program that integrates visual and performing arts into the school's academic curriculum. The design of the annex offers a flexible and collaborative environment that inspires creativity and excellence. It is sure to be a valuable addition to the school and the surrounding community.

Specs

Typology Commercial, Educational

Size 4,000 s.f.

Location Evanston, IL

Status Complete, 2022

Team

Architect Level Incorporated & Sakayan Inc.

Owner Beacon Academy

Structural Engineer Larson Engineering, Inc.